Climbing Scaffolding

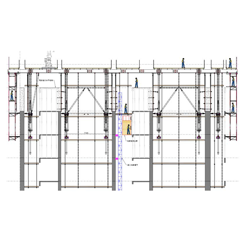
Integrated Jacking Formwork System

Integrated Jacking Formwork System

Integrated jacking formwork system is attached to the cast-in-place vertical structure and uses hydraulic cylinders for alternating lifting. According to the core tube structure, brackets may be set up on the exterior or combined with climbing formwork. Horizontal structures inside the core tube can be constructed simultaneously with the core walls. The system is adjustable to meet construction requirements for wall thickness changes or straight-to-inclined transitions.

Applicable for:
Super-high-rise structures with advanced core tube construction.

 

Advantages

  • Attached to the vertical structure of the core and can self-ascend.
  • All-weather construction support function.
  • High mechanization, quick construction and high safety.
  • Improve work efficiency and reduce labor force.